依树而聚, 安宁为居
方山有树酒店
方山有树(莫干山庾村店)是大乐之野旗下艺术策展酒店新品牌,位于浙江省湖州市德清县莫干山国际旅游度假区的庾村水街商区。
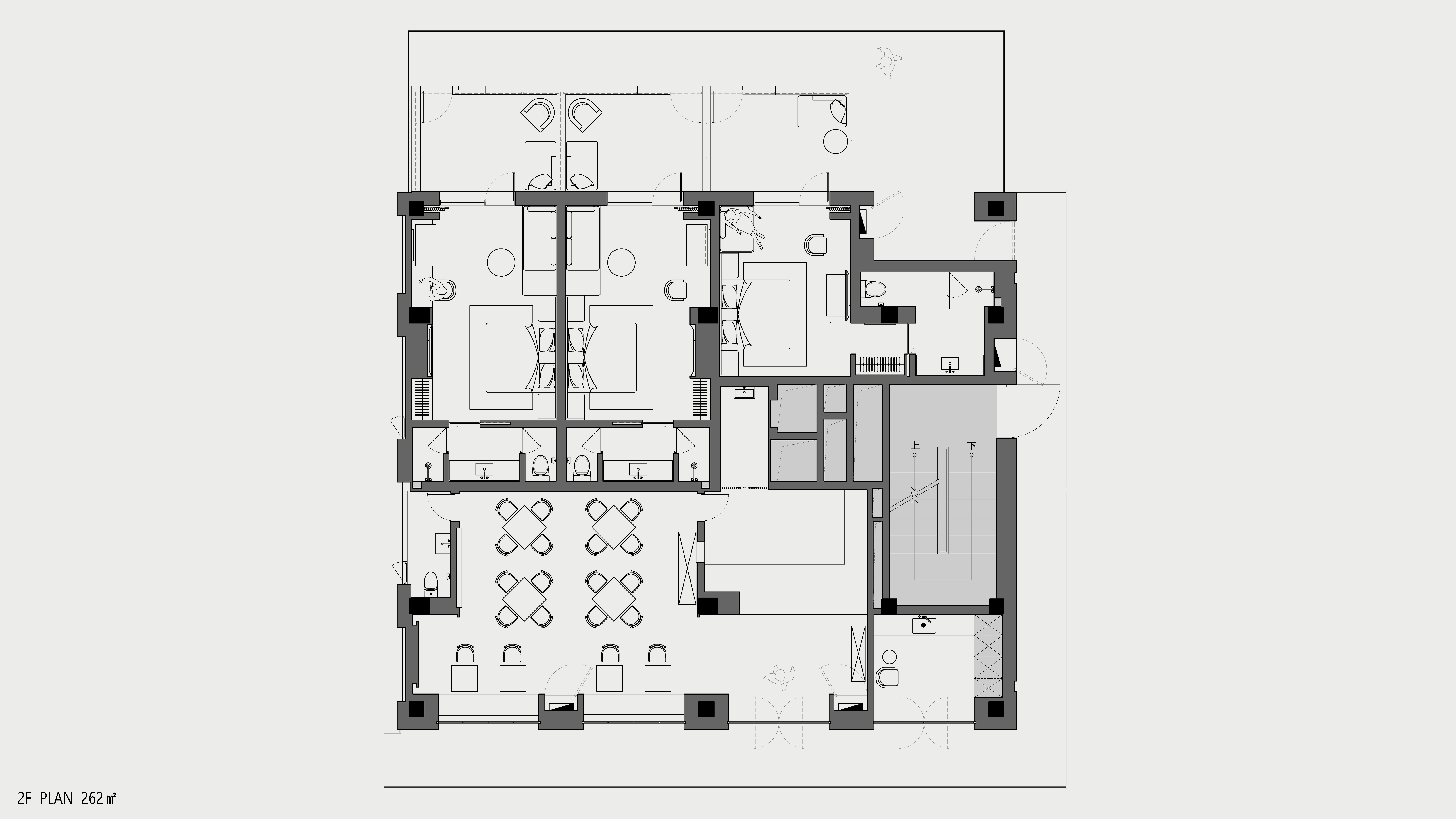
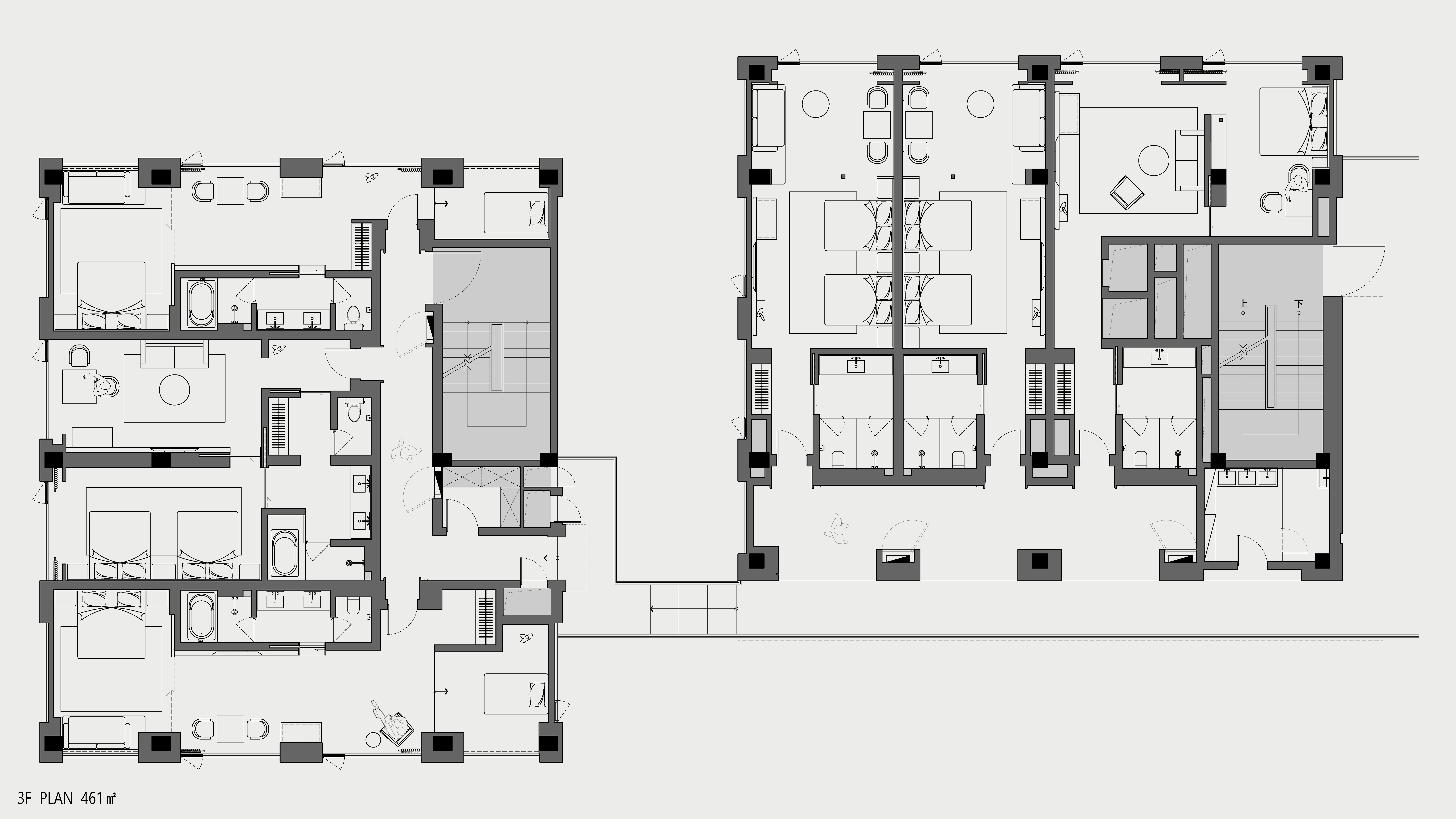
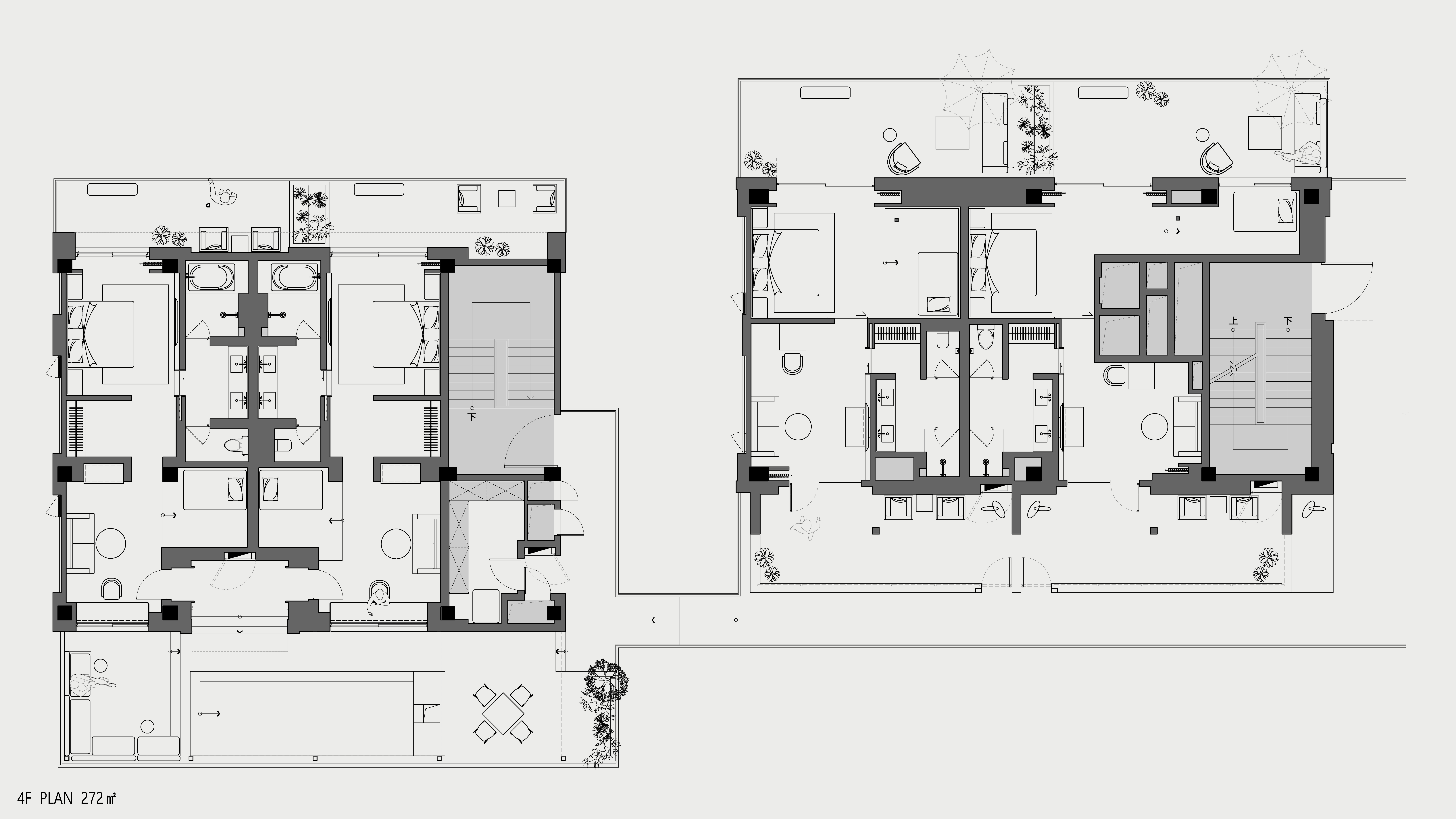
酒店由4层楼组成,共13间客房。其中1-2楼涵盖咖啡厅,餐厅,精酿吧,文创区,接待前台等区域;2-4楼涵盖客房和景观戏水池,包含大床房、双床房、套房等房型;其中3-4楼客房公区及露台区均有艺术品展览。
在设计中运用数根来自老建筑拆下的木柱形成水泥建筑中的小树林,附以其新的概念成长于此。
穿过“树林”去探索更深层次的客房秘境时,客人们将感受到有别于老树林的新生气息。
客房采用了较为柔和温暖的色彩基底,自然与现代材料并行。以跳跃的颜色点缀,克制而简洁的设计语言引入年轻、当代的味道,共同营造出具有新生命般活跃又宁静、低调又时尚的艺术秘境。





























